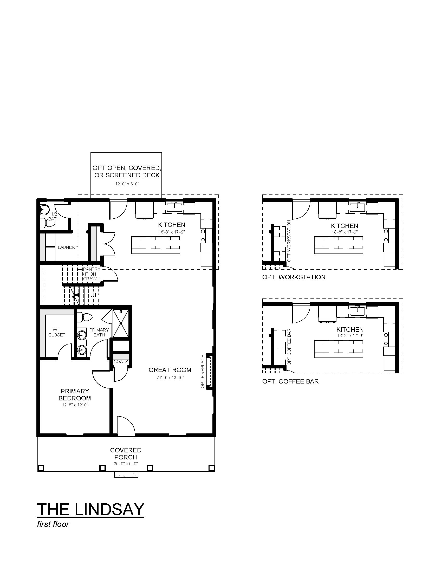
The Lindsay is a well-balanced home that brings together open living and private spaces with ease. The main level features a spacious great room that flows into the kitchen and dining area, along with a private primary suite for comfortable main-level living. Upstairs, two additional bedrooms, a full bath, and unfinished storage provide flexibility for guests or future needs. The optional finished basement adds even more versatility, offering space for a recreation room, bedroom, and bath. Thoughtfully designed and adaptable, The Lindsay is a home that grows with you.



