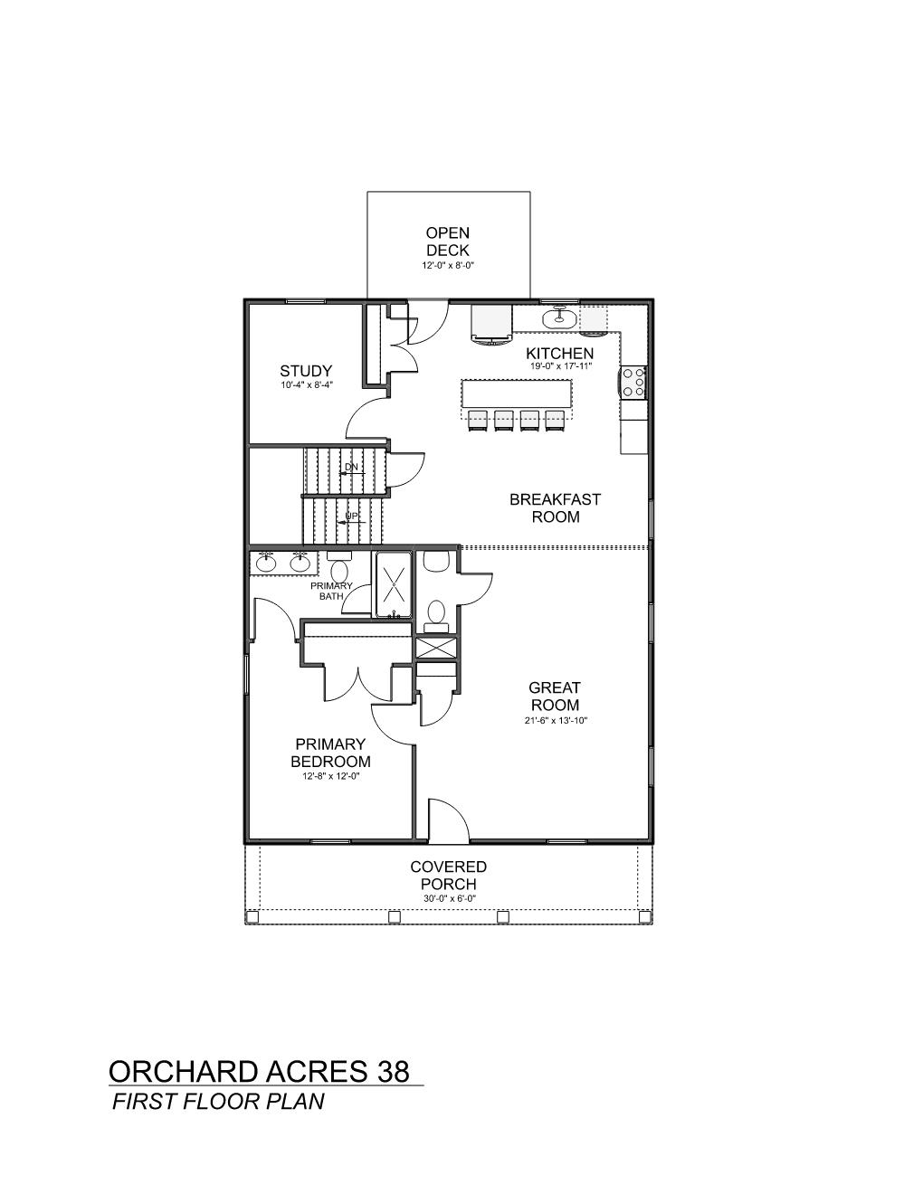
With its classic exterior and efficient layout, The Lindsay is ideal for those seeking comfort, style, and flexibility in a serene Crozet setting. Discover a thoughtfully designed home offering main-level living with room to grow. The main floor showcases a spacious great room and a large kitchen complete with a center island and breakfast area—perfect for everyday living and entertaining. Tucked privately on the first floor, the primary suite features a walk-in closet and a dual-vanity bath. A versatile study, powder room, and covered front porch round out the main level.
Upstairs, you’ll find two additional bedrooms, a full hall bath, and a conveniently located laundry room. The unfinished basement provides ample storage space or potential for future expansion.



